新建医院或老院区改造过程中一般都会考虑感染楼(病区)的建设,用于应对突发的大型公共卫生事件。当前,设计出既符合各种传染病防控要求,又能保护医护人员安全,且可应对临时的甲类传染病和大规模爆发的参照甲类管理的乙类传染病的感染楼,成为关注的重点。下面就丽水市中心医院的感染楼设计思路与大家分享。
一、感染楼原设计
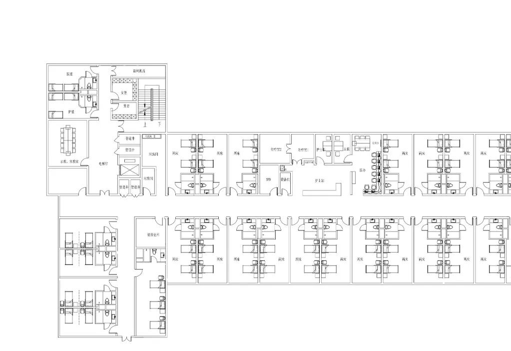
综合性医院感染病楼(病区)的床位规模是基于医院规模及所服务区域的人群数量而定的。医院拟新建感染楼建设规模为170床,一幢单体建筑地上4层(局部5层),无地下层,建筑面积约为7000㎡,占地面积约为1600㎡。由于受地理环境的限制,感染楼设计为T字形平面,东侧为大厅及洁梯,西侧为污梯。
一层为6间负压病房,共13张床位,主要用于甲类及参照甲类管理的乙类传染病患者中须要气管插管和气管切开的危重患者。负压病房设置在一层,主要考虑利用地面设计出入口,包括患者出入口、医疗废物出口、医务人员出入口及清洁物品和配餐的进口,利用外围地面可以节约建筑成本并简化设计。一楼负压病房东侧为相对独立的隔离区,分1区和2区感染病房,用于须要相对独立隔离且散发的传染性疾病患。二至四层收治普通感染疾病。
图1 感染楼原设计的一层平面图
图2 感染楼原设计的二~四层平面图
二、关于“平疫结合”的新思考
(一)一楼调整
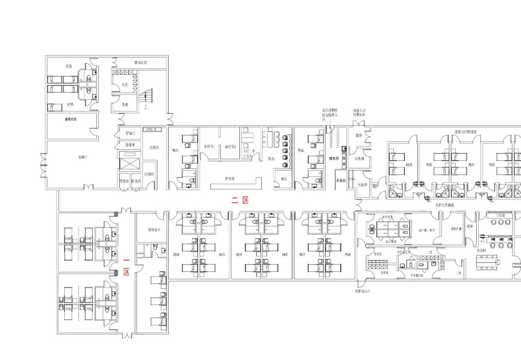
根据“平疫结合”的思路,我们对感染楼设计原稿进行了修改完善。在原有6间负压病房的基础上再增加1间负压病房(共7间15床),目的是在患者不多时可节约运行成本。同时利用负压病房医务通道,特殊情况下可把东侧的感染病房改为三区二通道的传染病房,实现平疫快速转化。
(二)二楼调整
1.功能结构
(1)对原有设计进行调整,加宽走道北侧病房的长度,在西北侧增加宽度为1.6m的内走道,调整并分隔相应的房间在平时及疫时使用,如护士长办公室、SPD室(指供应Supply、加工Processing和配送Distribution的环路)及设备间。
(2)为有效利用空间,把原北侧部分二人间改为三人间,保持平时病区的床位数。
(3)由于流程的改变,将护士站及医生办公室移到楼的北侧。
(4)在洗衣晾衣间与隔壁相邻病房的墙各开一扇门,以备方便改成三区两通道。
(5)在护士长办公室、SPD及污物间的墙上各开一扇门,平时关闭。可改为三区两通道时作脱防护服等的房间。
2.“疫”时的灵活调整
(1)有重大呼吸道传染性疾病流行时如要动用普通感染病房,即对病区相应的通道作相应的分隔,部分隔墙须加上相应的门,护士站与内走廊之间加传递窗,构成符合要求的三区两通道。
(2)临时改东面的洁梯为污梯(患者及污物通道实现“平疫”快速转化,平时服务,疫时抗疫,避免闲置),原污物电梯消毒后改为医务人员出入及清洁物品供应的洁梯。
(3)关闭平时使用的值班室、更衣室、示教室,三区二通道建成。
3.流线设置
(1)医务人员换衣进入病区通道和更衣流程。医务人员、工作人员及洁净物品从西侧电梯进入,医务人员换衣后从洁净区进入半污染及污染区,过几道缓冲门。
医务人员到病区具体流程:进入更衣室(男女共用)——脱外套后实施手卫生——戴口罩、帽子——进入缓冲区(男女分开)——路径1/路径2。
路径1:换专用服——穿防护服——带护目镜——戴双层手套——穿鞋套 手卫生——按指定路线经过缓冲区(护士长办公室)进入污染区。
路径2:换专用服——穿隔离衣——按指定路线经过缓冲区进入半污染区。
(2)患者进出、污物出病区具体流程:患者从东侧电梯上下,污物也从东侧的通道梯运走。
(3)医务人员换班下班流程:
路径1/路径2——SPD间——手卫生——脱帽子、口罩,手卫生——洗手(设备间)——沐浴间(男女分开)——更衣室(男女共用)——离开。
路径1:离开污染区——缓冲区(护士长办公室)——手卫生——脱外层手套、护目镜、防护服、内层手套、鞋套,每脱一步都要进行手卫生。
路径2:离开半污染区——缓冲区(护士长办公室)——手卫生——脱隔离衣、手卫生。
图3 感染楼一层战时改造图
图4 感染楼二层战时调整及临时分隔和分区图
图5 感染楼二层战时医务人员换衣进入病区通道和更衣流程图图6感染楼二层战时医务人员换班下班流程图
《中国医院建筑与装备》 杂志社 未经许可,不得复制、转载 京ICP备14023519号-1 技术支持:九州科创
恭喜您
注册成功

登陆成功
即刻开始浏览

密码重置邮件
已经成功发送
