ICU的设计要有利于医护人员开展工作以及患者的治疗和康复。
为此,有人进行了研究。
研究过程
选取A、B、C三家医院的重症医学科,这三家医院在空间布局、床位数、病房形式等方面具有差异性。
研究人员对三家医院分别进行了为期5天的调研,调研时间为8:00~24:00点,分为前期调研、数据收集以及问卷调查。
三家医院情况一览表
|
医院名称 |
A |
B |
C |
|
|
医疗区 |
床位数 |
共13床: |
共32床: |
共25床: |
|
监护形式 |
在开敞式病房处设置中央监控台,各病房设置玻璃门,病房之间设置玻璃观察窗 |
设置三个分护士站,配备监控报警系统; |
在开敞式病房处设置中央监控台,各病房设置玻璃门,病房之间无玻璃观察窗 |
|
|
ICU单元面积 |
950m2 |
3140m2 |
830m2 |
|
|
病房区面积 |
277m2 |
778m2 |
320m2 |
|
|
病房区面积占比 |
29.2% |
24.8% |
38.6% |
|
|
床均面积 |
73m2 |
98m2 |
33m2 |
|
|
医疗辅助区 |
护士站 |
1个中心护士站 |
3个分护士站 |
1个中心护士站 |
|
治疗室 |
1间 |
3间 |
1间 |
|
|
物品库 |
2间 |
4间 |
1间 |
|
|
仪器室 |
1间 |
2间 |
无 |
|
|
化验室 |
1间 |
1间 |
无 |
|
|
办公生活区 |
医护入口卫生通过区 |
更衣淋浴间兼用 |
1间 |
更衣淋浴间兼用 |
|
更衣卫浴 |
1套(护士专用); |
2套; |
2套 |
|
|
值班室 |
3间 |
5间 |
2间 |
|
|
医生办公室 |
1间(兼做示教室) |
2间 |
1间 |
|
|
主任办公室 |
无 |
2间 |
1间 |
|
|
示教室 |
办公室兼用 |
1间 |
1间 |
|
|
配餐室 |
无 |
1间 |
无 |
|
|
休息室 |
无 |
无 |
无 |
|
|
污物区 |
污洗间 |
1间 |
3间 |
1间 |
|
清洁消毒 |
无 |
1间 |
无 |
|
|
处置室 |
1间 |
1间 |
1间 |
|
|
入口区 |
医护入口 |
有 |
有 |
无专用入口 |
|
患者入口缓冲区 |
有(兼家属谈话室) |
有 |
有 |
|
|
家属等候区 |
无 |
有 |
无 |
|
|
家属谈话室 |
患者入口兼用 |
有 |
有 |
|
A医院重症医学科平面图
B医院重症医学科平面图
C医院重症医学科平面图
研究结论
可以考虑在床旁或者病房外设置小型观察站
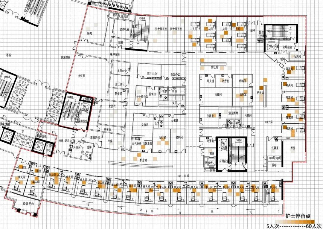
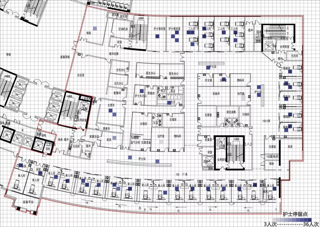
医护人员工作中最重要的是监测患者的生命体征,并进行高效地护理和抢救。
在平时护理工作中,护士是与患者联系最为紧密的工作人员。
由三家医院的护士行为可以看出,ICU护士与普通病区护士的工作不同,工作地点主要是在床旁而不是护士站,因此无论是开敞式病房,还是分隔式病房,都不存在直接视线观察有障碍的问题。
目前护士在床旁工作没有专门的工作区域,导致护士频繁往返护士站,增加了护士的行走路程。
A医院ICU不同功能用房热力图(8:00~18:00;
B医院ICU不同功能用房热力图(8:00~18:00;
C医院ICU不同功能用房热力图(8:00~18:00;
尽量设置单人病房
三家医院的病房形式主要分为开敞式病房、多人间以及单人间。
根据调查,医生查房时单人间的噪声值相对较小,而开敞式病房所受的影响较大。
可以考虑采用独立的病房,根据医院定位和当地消费水平来决定独立病房为单人间还是多人间。
查房时间段病房噪声值
单人间患者接受抢救治疗时的噪声值
多人间及开敞式病房内的患者接受抢救时的噪声值
医护人员应有相对安静的办公环境
ICU病区的医护人员长期处于高强度的工作环境中,病房的嘈杂环境会对他们的工作、休息产生一定影响。
在条件允许的情况下,医护人员的办公区域和生活区域须要相对独立,避免受到外界干扰,确保医护人员能够集中精力工作,有良好的工作环境。
A医院病房与办公生活区噪声对比图
B医院病房与办公区、生活区噪声对比图
C医院病房与办公生活区噪声对比图
原文作者:
资料来源:
关注微博
扫描二维码或点击
点击加关注
关注微信
扫描二维码或点击
点击加关注
《中国医院建筑与装备》 杂志社 未经许可,不得复制、转载 京ICP备14023519号-1 技术支持:九州科创
恭喜您
注册成功

登陆成功
即刻开始浏览

密码重置邮件
已经成功发送
